get_post_format():standard

「自宅マンション大規模修繕工事の記録」~第12章 シーリング交換と高圧水洗浄~

新シリーズ「自宅マンション大規模修繕工事の記録」、今回は「シーリング交換と高圧水洗浄」についてです。
※大規模修繕工事の大まかな流れにつきましては、大規模修繕工事コンサルタント業務をご参照ください。
下地の補修タイル補修と続いた今回は、防水工事の一種であるシーリング交換工事と仕上げ工事前の高圧水洗浄についてご紹介します。
シール材は、外壁のコンクリート打継部分や金属製の金物とコンクリートの接触面などから水が浸入することを防止する大切な役割があります。
昔は「コーキング」と呼んだりしていました。
私のマンションでは主に外壁のコンクリート打継部分と、アルミサッシュと躯体の取り合い部分に施工してあります。
シール工事については、全体の予算の関係上、第1回目の修繕工事の際にはあまり傷んでいないシールに関しては交換しない場合もあります。
例えば、交換工事に足場が必要な外壁に関しては交換して、足場がなくても(後からでも)できる内部のシール交換はパスする等の可能性があります。
シール材の保証期間は5年のケースが多いようですが、実際には場所によっては10年たってもなんともない箇所もあります。
しかし、今回は全てのシール材を交換することにしました。
下地の補修とタイル補修、貼替え、シーリングの交換が完了したら、高圧水で洗浄工事を行い、塗装工事にかかる準備が完了します。
洗浄工事と同時期に、先に試験をして決定したタイル洗浄薬品を使って「タイル洗い」の工事も行います。
薬品で洗ったあとを追いかけるようにして高圧水で洗浄していきます。

工事の様子

|seal-01.JPG|seal-02.JPG|
|アルミサッシュの窓枠と躯体のシール材を撤去しているところ。
カッター等できれいに取ります。|これは壁のシール材を撤去したあとの状態
シール材があまりかたくない場合はきれいに取れます。|
|seal-03.JPG|seal-04.JPG|
|新しいシーリングを施工する前に、テープで養生をします。
シール材が多少はみ出ても見切りをきれいに仕上げるためです。|コーキングガンを使って丁寧に充填|
|seal-05.JPG|spray-01.JPG|
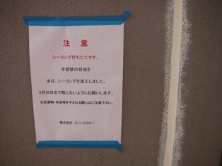
|シール施工後はしばらくベタつくので、注意文を掲示
きめ細かい配慮が必要です。|水に圧力をかけるための自家発電式コンプレッサー
圧力は≒300㎏/c㎡とかなりの強さです。|
|spray-02.jpg|spray-03.jpg|
|ベランダの上裏(天井裏)の洗浄
シーリングの交換をやってまだ間もないのでシールをいためないような配慮が必要です。
ほこりや油分を除去するように丁寧に施工します。|同じくタイル面の洗浄|
|spray-04.jpg|
|タイルを薬品で洗ってしているところ
この工事は、高圧水洗浄と同時に行います。|

「自宅マンション大規模修繕工事の記録」~第11章 タイル補修工事~

新シリーズ「自宅マンション大規模修繕工事の記録」、今回は「タイル補修工事」についてです。
※大規模修繕工事の大まかな流れにつきましては、大規模修繕工事コンサルタント業務をご参照ください。
前回「下地の補修」は、コンクリート下地の補修工事でしたが、引き続き今回はタイル補修工事のご紹介です。
私のマンションの外壁はほとんどがタイル仕上げです。
タイルに関する工事は、ひび割れしているタイルの貼替えや下地から剥離して浮いているタイルの脱落防止処理などです。
また、10年以上たって、タイル表面の汚れも進んでいるので薬品を使って表面の汚れ落としも行います。
ひび割れたタイルは、コンクリート下地面から同時にひび割れを起こしている可能性もあるので、タイルを除去した後はコンクリート下地の確認も行い、ひび割れがあった場合は、前回ご紹介したとおり下地の処理工事を施します。
タイル補修工事で注意しなければいけないのが、補修に使うタイルの色(模様等)が現状のタイルと合うかどうかです。
普通マンションでは、新築工事の際に余ったタイルを補修用として保存してあるはずですが、必ずしも保存しているとは限りませんし、また保存してあっても枚数が十分でない場合もあります。
私のマンションでは、タイルが保存してありましたが枚数が足りないことは最初から予想されていました。
その場合は、専門業者に依頼して新しくタイルを焼成するか、市販品で対応するかを選択します。
施工業者との契約では、2種類のタイルを新たに釜で焼くことになっていましたが、市販品(近似品)でなんとか間に合えば、価格的にも工期的にもメリットがあります。
修繕委員会では、見本品を検討した結果、色が極めて近い市販品のタイルを採用することとしました。
そうすることで釜焼との金額の差を精算し、あまった金額を他の追加・検討工事に使える可能性も出てきました。
このあたりは重松マンション管理士事務所のアドバイスです。ちょっとセコイかな。(苦笑)

工事の様子

|tile-01.JPG|tile-02.JPG|
|あまり目立たない部分でタイル洗浄剤のテストです。
酸性の強い薬品は汚れの落ちがよいのですが、最近は環境にやさしい中性洗剤等も発売されています。|今回は、汚れ具合と作業性等を検討した結果、酸性の弱い薬品を使用することにしました。|
|tile-03.JPG|tile-04.JPG|
|打検棒を使ってのタイルの調査です。
ひび割れ部分と、下地からの浮き部分を確認していきます。|ひび割れている部分はテープを貼ってマーキングしておきます。
この部分は原則として貼替えとなります。|
|tile-05.JPG|tile-06.JPG|
|貼替えが必要なタイルの除去作業|除去作業完了
コンクリート下地にもひび割れがある場合は適切な補修を行います。|
|tile-07.JPG|tile-08.JPG|
|特殊な接着剤を使用してタイルの貼替えをやっています。
市販品ですが、現在のものとあまり変わりません。|貼替えが完了したら目地を塗りこんで完了|
|tile-09.JPG|
|黄色いテープで囲んだ部分は、タイルが下地と剥離して浮いている箇所です。
モルタル下地の浮き補修の時と同様に、エポキシ樹脂を充填して固定します。|

「自宅マンション大規模修繕工事の記録」~第10章 下地の補修~

新シリーズ「自宅マンション大規模修繕工事の記録」、今回は「下地の補修」についてです。
※大規模修繕工事の大まかな流れにつきましては、大規模修繕工事コンサルタント業務をご参照ください。
足場などの仮設工事が完成したら、まずは躯体下地の調査及び補修工事を行います。
私のマンションは外壁はほとんどタイルですが、ベランダや開放廊下の天井、手摺壁などは、吹付けの塗装材です。
下地補修の一番の目的は、ひび割れや爆裂、モルタル下地の浮き等をきちんと修理してから塗装工事を行わないと、せっかくきれいに塗装しても、すぐにまた、ひび割れや塗膜の剥離が発生してしまうからです。
ですから、地味な作業ですが最も重要な作業となります。この工事の出来次第で修繕工事が大きく左右されるといっても過言ではありません。
専門の職人さんが目視とパルハンマー(打検棒)による調査を行い、下地の不具合の状況に応じ、それぞれに必要な補修を実施します。
塗装面下地面の主な補修方法は以下のとおりです。
0.3㎜未満のひび割れは、セメントフィラー(目地埋め材)をすり込んで補修
0.3㎜以上のひび割れは、シール材を注入(Uカット後にシール材を充填する工法もあります。)
爆裂は、露出した鉄筋にさび止め処理を施し、エポキシ樹脂入りモルタルで平滑になるまで補修
モルタル下地の浮きは、孔を開けエポキシ樹脂を充填して剥離防止を施します。
また、下地の補修はこうして足場が完成した後に、調査しないと正確な数字が把握できません。
設計(見積り)段階では、データーや経験による概算数量に基づき契約し、実際の数量が確定した時点で「下地調査表」をもとに増減精算をすることになります。
契約時はある程度安全を見て数量を設定しますので、精算作業で大きく予算を上回ることはあまりありませんが、下地の傷みが大きい場合などは、設計数量をオーバーすることもあります。
そのようなときのために、工事予算の5%程度を予備費として計上していますが、今回の工事では設計予算以下で下地補修が完了しそうです。

工事の様子

|sitaji-01.JPG|sitaji-02.JPG|
|クラックスケールを用いて、ひび割れの幅を測定しています。
0.3㎜未満と、以上を区別してマークします。|この現場では、黄色いスプレーは0.3㎜未満
下に書いてある数字はメートル表示のひび割れの長さです。|
|sitaji-03.JPG|sitaji-04.JPG|
|赤く囲んでいる箇所が爆裂です。
鉄筋が露出しているのが分かります。|0.3㎜未満のひび割れは、セメントフィラーのすり込みで補修します。|
|sitaji-05.JPG|sitaji-06.JPG|
|0.3㎜以上のひび割れはシールを直接注入します。
ダイレクトシール工法といいます。|手摺壁の天端のモルタルが剥離して浮いている箇所は、エポキシ樹脂を注入します。
≒250㎜ピッチで注入用の孔を開けて・・・|
|sitaji-07.JPG|sitaji-08.JPG|
|注入用の器具を使って充填しています。
1つの孔から充填する料は≒30g|注入が完了した後は、ピンを打ち込んで固定します。|
|sitaji-09.JPG|
|端の浮いている箇所から樹脂があふれていることを確認し、十分に充填されているのが分かります。|

「自宅マンション大規模修繕工事の記録」~第9章 工事着工~

新シリーズ「自宅マンション大規模修繕工事の記録」、今回は「工事着工」についてです。
※大規模修繕工事の大まかな流れにつきましては、大規模修繕工事コンサルタント業務をご参照ください。
着工前の所定の手続が無事終了し、いよいよ工事開始です。
最初は、仮設工事からスタートします。
仮設工事は、現場事務所や資材置き場、トイレなどの共通仮設と、足場に代表される直接仮設の2通りです。
私のマンションは35世帯。足場の組み立ては1週間足らずで完成しました。
今年の6月から労働安全衛生規則が改正され、足場に対しては、転落防止の措置が必要となりましたが、この現場では、ブレースの下に横さんを1本追加する方法を採用したようです。
この方法なら、㎡当たりそれ程の追加金額にはならないのではないかと個人的には感じました。
足場工事に関しては、繋ぎ金具を壁面からとる関係上、壁にドリルで孔を開けるのですが、そのときの音が結構大きく不評でした。(苦笑)
仮設トイレは駐車場横のスペースに汚水用の枡があったので、その枡を利用して水洗トイレを設置し、同時に洗い場も作ります。
この時期の居住者の関心事は、足場伝いに進入してくる泥棒対策やベランダに設置してあるパラボラアンテナの撤去、工事に影響が出るベランダの植木の移動などです。
足場の組み立てが始まると、下階のベランダから使用制限が開始されますので、洗濯作業についても主婦は気になるところですね。
工事開始2日目にはエントランスに掲示板を設置し、居住者との情報連絡を図ることがとても重要なことになります。
|kasetu-13.JPG|現場事務所前で、監督の吉武さんとツーショット!
私のマンションの敷地内には、現場事務所を設けるスペースがなかったので、最初は近隣のマンションの空き室を5ヶ月ほど借りる予定でした。
しかし、私の事務所の大家さんのご好意で、すぐ前の空いている事務所を工事期間中安く貸してもらうようになりました。
それにしても二人とも足が短い・・・|

仮設工事の状況

|kasetu-01.JPG|kasetu-02.JPG|
|建設業許可証と道路占用使用許可証
落下防止の朝顔が道路境界線に出るので、、|外部足場は1週間足らずで組みあがりました。|
|kasetu-03.JPG|kasetu-04.JPG|
|下のほうは金網で養生します。|人が通る通路は、クッションを使って危険防止|
|kasetu-05.JPG|kasetu-06.JPG|
|仮設のトイレと洗い場の設置|工事用の仮設電源の取り込み|
|kasetu-07.JPG|kasetu-08.JPG|
|エレベーターは工事用としても使用するので
全面的に養生します。|壁と床も傷つけないようにしっかり養生|
|kasetu-09.JPG|kasetu-10.JPG|
|ベランダの植木を一時的に保管する植木置場
水遣り等は自分の責任で行います。|エントランスには掲示板を設けて情報提供
一番気になるのは洗濯物干し情報?|
|kasetu-11.JPG|kasetu-12.JPG|
|メッシュシートで覆われたらこんなになります。|かの有名な補助錠のロックマン|

「自宅マンション大規模修繕工事の記録」~第8章 着工前の手続~

新シリーズ「自宅マンション大規模修繕工事の記録」、今回は「着工前の手続」についてです。
※大規模修繕工事の大まかな流れにつきましては、大規模修繕工事コンサルタント業務をご参照ください。
前回「施工会社の決定」で報告したとおり、プレゼンテーションを経て、理事会で内定した工事業者に発注することを臨時総会に諮りました。
総会の議案の概要は

  1. 大規模修繕工事の発注先の会社
  2. 発注金額
  3. そのほかに、不測の事態等に備えた予備費として別途予算化しておく金額
  4. 今回の大規模修繕工事の工事概要

等です。
今回の私のマンションはエントランス、ゴミステーション、自転車置場の大幅な改造工事を含んでいたので、採決は特別決議に当たる4分の3で実施しました。
区分所有法にいう「形状又は効用の著しい変更を伴う」工事となるからです。
事前の周知活動をきちんとやっていたので、臨時総会は出席者の全員一致で承認されました。
そしていよいよ着工です。
総会承認後は、まず工事会社と工事請負契約を締結し工事準備に入ります。
仮設足場設置等の届出を労働基準監督署に提出するための手続には図面の作成を含めて約1ヶ月かかります。
その間に今度は工事開始前の「住民説明会」を実施します。
修繕委員会、設計事務所、工事会社の3者で協議して説明会資料をまとめた上で、居住者に「住民説明会」の開催をお知らせしました。

住民説明会の様子

|setumeikai-1.JPG|マンションの修繕委員会、設計事務所、工事会社の3者で、住民説明会の準備作業中です。
説明会用の資料は工事会社が作ってきますが、内容を精査して、今回の工事内容と説明資料の内容に齟齬がないかなどを確認します。
また、できるだけ一般の住民にも分かりやすい言葉を使うように指示をして修正させました。|
|setumeikai-2.JPG|住民説明会用資料の原稿はカラーで、イラストなどもふんだんに使ってありなかなか良くできていました。
説明の順番を変えたほうが住民に分かりやすいので、資料のページの入れ替え等もお願いしました。
工事会社や設計事務所は、何回も説明会をやっているので内容が分かっていますが、一般の住民は始めての人が多いので、補助錠の貸し出し方法、ベランダでの洗濯物干しに関することなど、われわれが感じている以上に親切に書いてあげないと、後でトラブルになります。
設計事務所や工事会社には不足しがちな、このあたりの繊細さが特に必要です。|
|setumeikai-3.JPG|説明会当日の風景
やはり家庭にいることが多い女性の方の出席が多かったです。
工事会社の責任者の説明がとても上手だったので和気あいあいの内に進んでいきました。
説明会の概要は
・工事の内容
・工事の体制及び安全管理の体制
・全体の工程(工事期間)と、ベランダの使用を制限される時期の説明(洗濯物干し情報など)
・居住者に協力してもらわなければならない事項の説明
・ベランダにあるエアコン室外機や植木等の移動についての説明やそれにかかる費用など
・防犯、盗難に対する対策
その他等になります。
|
|setumeikai-4.JPG|これは、工事全体の流れを説明している資料です。
色分けがしてあって大変判りやすくできていました。
住民説明会を無事終了し、いよいよ着工となります。
|

「自宅マンション大規模修繕工事の記録」~第7章 施工会社の決定~

新シリーズ「自宅マンション大規模修繕工事の記録」、今回は「施工会社の決定」についてです。
※大規模修繕工事の大まかな流れにつきましては、大規模修繕工事コンサルタント業務をご参照ください。
いよいよプレゼンテーションの実施です。
前回ご報告したとおり、見積金額が安い方から3社を選定し、日時を指定して行いました。
集会室の無い私のマンションの場合は、近所の公民館を予約して行います。
なるべく多くの居住者が参加できるように日曜日の午後を選んで、理事会主催で行いましたが、工事着工前の「住民説明会」と違って、プレゼンテーションは重要なことではありますが、どうしても内容が硬くなるので一般の居住者にはなじみが薄いようです。
出席は圧倒的に理事や修繕委員となってしまいました。
重松マンション管理士事務所も日曜日は客先の理事会等で忙しいのですが、この日はたまたま都合が付いたので参加することとなりました。(でも私はなるべく黙っているよう心がけています。)
施工会社選定(内定)のためのプレゼンテーションのやり方にはいろいろありますが、実施していただく業者数は一般的には3社~4社が多いのではないかと思います。
普通は、金額の安い方から何社!ということが多いと思いますが、金額が接近している時や、事前の調査で信用力や実績が高く評価されていた会社などがそこそこの見積金額を提示した場合は、それらの会社にもプレゼンテーションを要請することもありますので、会社数が多くなることもあります。
プレゼンテーションは、会社案内から始まり、会社概要、この工事に対する取組姿勢の説明などがあり、そしてその後に、出席した理事や組合員等から、見積内容や工事に関する質問を行い回答してもらいます。
また場合によっては、最後に「最終提示価格」を出してもらうこともあります。
そうすると、どうしても1社当たり1時間半程度はかかります。
途中の休憩等をはさんだら3社でも5時間程度となり、組合員等の負担も考え、1日で終了させようと思うとやはり上記程度の数が適当ということになります。
ですから、プレゼンテーションを依頼する会社の数を増やす場合は、会社案内などは資料の提出だけにしてもらい、説明は特に重要なポイントに絞ってお願いし、1時間/1社を目安に行うこともあります。
会社概要は読めば分かりますからね。。。
|presen-1.JPG|当日プレゼンテーションを依頼した3社の配布資料です。どの会社も、資料の内容には大差ありませんでした。
「挨拶と会社概要」
「現場代理人予定者経歴書」
「工事・品質管理体制図」
「アフターサービス体制と保証期間等」
「周辺の居住状況と安全管理体制」
「仮設計画について」「概略工程表」
「バルコニー等の使用制限の説明」
「安全・環境・防災対策」
「工事中の広報等」「緊急時連絡先」など工事に関する全てのことが約20頁の資料の中に盛り込まれています。|
|presen-2.JPG|プレゼンテーションには、下記の理由から、受注した場合の現場監督予定者の同席をお願いして行います。
マンションの大規模修繕工事は、居住者が生活しながら工事が進んでいきますので、工事の成功には居住者の協力が不可欠です。
そして、そのためには現場監督と居住者のコミュニケーションがうまく取れないと工事は成功しませんので、現場監督の力量は工事の成否に大きく影響します。
また、私たち一般の居住者(特に主婦)は、建築に関しては全くの素人が多いのでその中で、居住者に親切に対応してくれる現場監督が必要となります。ここが新築の工事と大きく違うところです。
ですから、現場監督予定者の話し方や人柄を判断して「この人が良さそう!」というのも意外と大きな選定材料となります。
今回のプレゼンテーションの司会は、工事監理を行う設計事務所に担当してもらいました。
設計事務所からの質問に関しては、私も事前に内容を打ち合わせしておきます。
私や設計事務所がおこなう質問は、一般居住者の質問事項とは当然に異なりますが、、、
・仕様書や、見積書からはなかなか読み取りにくい「共通仮設」の、内訳の確認(特に安全対策や廃棄物処理)
・工事管理や検査に関する体制の確認、設計事務所との役割分担の確認
・実数精算工事項目の、精算方法の確認
・他社と比較して異常に安い、又は高い工事項目の内容確認
など、プレゼンテーション資料には書いていない部分です。|
3社のプレゼンテーションが終了したのち、各社から提出を受けた最終見積金額の入った封筒を開封して、修繕委員会と理事会で協議しました。
最終判断は、理事会で行いますが、私のマンションの工事内容に対する理解度や、事前の下見の状況、そして最終価格から判断し、1社に内定しました。
管理組合が予定していた金額内に十分に納まり、また、設計価格の70%以下で発注することが可能となり、修繕委員会はほっとしています。
次は、臨時総会を経ていよいよ発注手続に入ります。

「自宅マンション大規模修繕工事の記録」~第6章 談合の防止~

新シリーズ「自宅マンション大規模修繕工事の記録」、今回は「談合の防止」についてです。
※大規模修繕工事の大まかな流れにつきましては、大規模修繕工事コンサルタント業務をご参照ください。
前回「見積の取得作業」でご紹介したとおり、業者から提出された見積書は設計事務所が一覧表にまとめ、廉価順位や設計価格に対する乖離率等も色分けし、資料を作成します。
見積金額が高い方の業者に関しては、発注の可能性がないので特にチェックは必要ありませんが、価格の安い業者に関しては次の点に注意してチェックします。

  1. 管理組合が事前に設定している予算額に収まっているか。
  2. 談合等の不正はなかったか。
  3. 仕様書の内容に沿った見積となっており、見積漏れ等はないか。

「3.」に関しては基本的には設計事務所がチェックして報告してくれますので、私は「2.」の談合に関してチェックしましたが、今回は談合は成立していないと判断しました。
談合をチェックするのは一般の人はなかなか難しいと思います。

  • 予算金額をオーバーしていたら談合か?
  • 全体の金額が高かったら談合か?
  • 全体の金額が横並びだったら談合か?

など。。。いずれも可能性はありますが一概には言えません。
また、談合の証拠を明確に掴むことは業者のタレコミや自白がない限りは不可能です。
談合ではないかとの疑いがあった場合は、各社の提示金額を単価レベルでチェックする必要もありますので、かなり専門的な知識と時間が必要になりますので難しいと思います。
私はたまたま建築業界が長く、おおよそのことは分かりますので見積一覧表が出てきたら談合に関してチェックします。
別のページ「マンション大規模修繕工事における談合の実態について」で談合に関して自分の意見を書いているのでよろしかったら参考にしてください。
いずれにしても、管理組合がコツコツ積み立てた修繕積立金を談合という不当な方法で無駄に使ってしまうのは避けたいところです。
話は変わり、見積書を提出していただいた施工会社のうち、価格が安かった上位3社に対してプレゼンテーションをお願いしすることに決定しました。
次回はプレゼンテーションとその後の様子などをご報告します。

「自宅マンション大規模修繕工事の記録」~第5章 見積の取得作業~

新シリーズ「自宅マンション大規模修繕工事の記録」、今回は「見積の取得作業」についてです。
※大規模修繕工事の大まかな流れにつきましては、大規模修繕工事コンサルタント業務をご参照ください。
実施仕様と予算が決定し、総会の承認も得られたので今後は大規模修繕工事を施工してくれる工事会社の選定に入ります。
委員会で話し合った結果、設計事務所を選定したときと同様に新聞で公募することにしました。
使用した新聞は「マンション管理新聞」と「建通新聞」です。
私のマンションは35戸と規模が小さいので、必ずしも規模が大きな工事会社でなくても良いという判断で、募集要件のハードルを低くしました。
具体的には、実績面について「過去3年間、関東エリアで工事金額5千万円以上の元請施工実績が6件以上あること」としました。
そうしたら、応募してきた会社はなんと18社(ゼネコン系1社、管理会社系2社、専業者系15社)でした。
設計事務所が応募業者の一覧表を作成し、それを見ながらどの業者に見積依頼をするかを決定します。
応募全社に依頼してみようという意見もありましたが、業者も見積費用を負担することは承知の上とはいえ、その費用は20万円前後かかります。
また、設計事務所が見積もり比較一覧表を作成するにも手間がかかるので、見積書の数さえ多ければよいという考えはあまり合理的とはいえません。
ですから、内容等を判断して発注の見込みがない会社にはご遠慮していただくこととし、今回は実績の多さ、会社経営の内容が比較的しっかりしていそうなところ9社を選定して見積依頼をすることにしました。
もちろん全て重松マンション管理士事務所が知っている会社でした。
見積の依頼に際しては、「見積要項書」、「仕様書」、「金ヌキ明細書」、「図面」などをCDに保存して、設計事務所から各業者に郵送しました。
昔は、現場説明会といって、業者を現場に集めて管理組合と設計事務所から工事内容等を説明することが多かったのですが、応募した会社同士が顔を合わせるので談合になりやすいという批判がありました。
最近は、現場説明会をやめて郵送による見積依頼が主流となっているようです。
一定の見積依頼期間に、「現場下見」と「質疑応答」を行い、見積書を提出してもらいます。
|gyoushaboshuu-1.JPG|マンション管理新聞に依頼して確保したフリースペース(無料告知欄)です。
管理組合が無料で利用できることで評判が高いのですが、掲載申し込みが多いので早めに申し込んでおかないと希望の期間に掲載してもらうことが難しくなります。
担当者と打合せ、原稿の内容を確認しながら掲載してもらいます。
マンションの大規模修繕工事に関する業者はこの新聞を必ず見ているので、自社の希望や状況を判断して応募してくることになります。
そのほかに建通新聞(日刊)の首都圏版と千葉版にも掲載を依頼しました。|
|gyoushaboshuu-2.JPG|なんと応募は18社です。
私のマンションのような小規模マンションに、こんなに多くの会社が応募してくるとは思いませんでした。
それでも、管理組合としてはうれしい結果です。
設計事務所が応募業者の比較一覧表を作成して管理組合に説明してくれました。
一覧表の内容は、会社の概要が主体となりますが、会社の規模や売り上げランキングをはじめ、帝国データーバンクの信用調査結果(評点)なども調査してあります。
委員の方には、全社に見積を依頼してみようと考えている方もいらっしゃいました。|
|gyoushaboshuu-3.JPG|今回の見積依頼に際して設計事務所が作成した「見積要項書」と「工事仕様書」です。
見積要項書には、今回の工事の概要、現場下見や質疑回答の要領、見積書の提出方法などが細かく指示してあります。
また、工事仕様書は今回の見積対象となっている工事に関して、仕様、工法、材料などについて細かく規定してあります。
この分野は私も比較的詳しいので、内容をチェックして設計事務所に指示しました。
付箋のはってあるページは私の指示が入っている箇所です。|
|gyoushaboshuu-4.JPG|この写真は、質疑及び回答書の一覧表です。
工事業者は、見積関連書類を見て、その後現場下見を実施した後に見積作業に入るのですが、見積もるに際して業者からの疑問点などの質問が出ます。
また、設計事務所の仕様書と現場の状況に違いがある場合なども時々あるのでそれらの確認等の目的の質問もあります。
質問は、各社から寄せられますが、全てに回答し、一覧表にしたものを全社に配布します。
つまり、自社が質問していない項目についても、質問内容とその回答が分かりますのでより精度の高い見積ができることになります。|
|gyoushaboshuu-5.JPG|見積提出期限にあわせて全社から見積書の提出がありました。
開封に関しては、透明性を担保するため複数の委員が立ち会って一斉に開封しました。
提出部数は2部で、1部を設計事務所に渡し、1部は管理組合で保管します。|
|gyoushaboshuu-6.JPG|設計事務所が作成した一覧表に基づき検討しています。
今回は、9社の中から更に詳しい話を聞いてみたい業者を3社選定して、「プレゼンテーション」を受けることにしました。
当然、発注の可能性がある会社が対象となるので、委員会で検討した結果、提出された見積価格の安い方から3社を選ぶことにしました。
残りの6社にはお断り状(ご挨拶状)を理事長名で郵送します。
ただし、価格だけで選定するのではなく会社の信用度も併せて検討しましたが、帝国データーバンクの評価点は3社とも60点以上でした。
私がサラリーマン時代に上司から言われていたことは、信用度の目安は「55点以上」と教わっていたので、60点以上ならOKだと判断しました。
|
|gyoushaboshuu-7.JPG|設計事務所が作成した見積提出額比較一覧表
提出価格の安い順に並べてあります。
また、主要項目に関しては、廉価順位や設計価格との乖離などが色分けして記載されており、とても見やすくて判断材料としてはGoodです!|

「自宅マンション大規模修繕工事の記録」~第4章 修繕仕様の決定~

新シリーズ「自宅マンション大規模修繕工事の記録」、今回は「修繕仕様の決定」についてです。
※大規模修繕工事の大まかな流れにつきましては、大規模修繕工事コンサルタント業務をご参照ください。
設計事務所が正式に決定したのでいよいよ本格的な作業の開始となります。
建築士法の改正を受けて、設計監理の委託契約を締結するには契約前に管理建築士から「重要事項説明」を受けて契約する必要がありますので、理事長がその説明を受けて正式に契約を締結しました。
次に基本的な設計プランを提示してもらいますが、その前に追加で現地調査を実施することになりました。
理由は、管理会社が昨年実施した「建物診断及び報告書」に基づいて、基本的な仕様を考えていましたが、詳細な設計を行うには、上裏(ベランダの天井)の中性化試験塗膜の付着力試験のデーターが不足しているとのことでした。
設計事務所による追加の調査を経て、「調査報告書」と「基本設計仕様書」が出来上がります。
私たちは、上記書類の説明を受けて、現在の建物の状況と修繕が必要な箇所の確認を行います。
そして、その後に各仕様についての設計価格の提示を受け、修繕積立金の残高や昨年作成した長期修繕計画とも照らし合わせながら最終仕様を決めていきました。
築12年でもっともポピュラーな大規模修繕工事ですが、屋上防水は比較的状況が良いので部分補修とし、住民から要望が出ていた「エントランスのバリアフリー化」、「ゴミステーションの改善」、「自転車置場の改善」などを予算に組み込むこととしました。
私たちのような35世帯の小規模マンションでは、一般的に第1回目の大規模修繕工事の予算は100万円/戸といわれていますが、今回は以上のような改善工事に結構お金がかかりそうなのでもう少し多目の予算を取りました。
概略仕様と予算が決まったので、定期総会において議案化して承認をもらうことにしました。
総会議案書案の作成は重松マンション管理士事務所の担当ですが、そちらは当然お手のものです。総会は全員一致で難なく承認されたました。
|zyuusetu.JPG|昨年改正された建築士法に則り、管理建築士の方から「重要事項説明」を受けました。
1級建築士の資格を証明するコピーを提示して、契約書の内容を読みあわせる形で説明していました。
理事長は、契約内容を確認しながら説明を聞いていましたが、長年使用されている様式の契約書とのことで特に問題はないようです。|
|pretest.JPG|設計前の再調査は、私の自宅を含めて3件の住戸に協力してもらいました。
この写真は、タイルの浮きの状況をパルハンマーで調査しているところですが、この後に上裏の中性化テストや塗膜の付着力テストも行いました。
予想以上に中性化が進んでいる場合は、コンクリート下地補修の仕様も検討しなおす必要があります。
また、塗膜の付着強度が不足していると、既存塗膜の上から新規の塗装をかけることが難しいので、既存塗膜を剥離して施工する必要があります。
築12年の私のマンションでは、開放廊下の天井面の中性化が予想よりも進んでいることが判明しましたが、基本的な設計仕様には特に影響なく実施できそうです。|
|yosanmeeting-1.JPG|設計事務所から提出を受けた書類です。
調査結果報告書、基本設計仕様書、設計価格一覧表などです。
各部位の修繕仕様についてはハイクラス、一般仕様、エコノミー仕様の3通りに分類して価格設定がされています。
また、そのように分類できない部位もあります。
仕様の決定は難しいところですが、管理組合の希望と修繕積立金の残高、次の大規模修繕工事の時期などを総合的に判断して決めていくことになります。
今回は、自転車置場ラックやゴミボックスのカタログ、エントランスのバリアフリー化の図面なども一緒に見ながら検討しました。|
|yosanmeeting-2.JPG|打合せ風景
修繕委員会の委員長と理事長です。|
|090417jitaku daikibo-1.JPG|私のマンションのエントランスです。
一見ゴージャスには見えるのですが、階段のバランスが悪く歩きにくいことと、左に見えているスロープの勾配が急で車椅子も通ることができず、一体何のためにあるのか良くわからないと不評です。
現在1/5程度の急勾配を少なくとも1/8までには改善したいと考えています。|
|090417jitaku daikibo-2.JPG|現在のゴミステーション
エントランスのすぐ隣に設置されていてみっともないことや、カラスよけの網をかぶせる程度ではカラス対策も不十分です。
また、2~3階の居住者からは、夏はにおいの問題で苦情も出ています。
市の指導で場所を変更することはできませんが、開閉フタのついたアルミ製のゴミボックスを設置したいと考えています。|
|090417jitaku daikibo-3.JPG|雑然とした自転車置場
現在あるラックは幅が狭くて自転車の出し入れがやりにくいと不評です。
結局、良く利用する人はラックではなく平地においてしますので人の通行などに支障をきたしています。
|

「自宅マンション大規模修繕工事の記録」~第3章 設計事務所の決定~

新シリーズ「自宅マンション大規模修繕工事の記録」、今回は「設計事務所の決定」についてです。
※大規模修繕工事の大まかな流れにつきましては、大規模修繕工事コンサルタント業務をご参照ください。
設計事務所の選定に当たっては、1次審査の後に見積を依頼する業者を決定し見積書を取得しましたが、見積比較一覧表を作成した後、プレゼンテーション(会社の説明やPR)を受ける業者を決定します。
この作業を2次審査といいますが、見積を提出した業者の中から今回は3社に絞り込んでプレゼンテーションをお願いしました。
選定基準は、価格(ただし、安いだけでは決めませんでした。)、実績などを参考にして決めました。また、3社としたのは特に根拠はありませんでしたが、あまり多くても迷ってしまうことも考えられたのでなんとなく決まったみたいです。
3社のプレゼンテーションを受けた後、修繕委員会で話し合い、一番よさそうな1社に絞り込みましたが、価格は3社の中では一番高かった会社です。
大規模修繕の流れや施工業者選定の方法、このマンションを見た後の改善提案などが他社よりも分かりやすかったことが修繕委員の評価につながったようです。
しかし、価格は管理組合が考えていた予算を若干オーバーしていたので、翌日委員長が再度交渉して少し下げてもらい何とか双方の折り合いがつきました。
前年度の通常総会においては、事業計画として「大規模修繕工事の検討」は、承認されていましたが、方法や予算に関しては臨時総会を開催して承認を採ることを別に明示していました。
ですから、至急臨時総会を開催し、「設計監理方式」で大規模修繕工事を進めることと、そのための設計事務所を決定することについて承認を貰うことになりました。
|0903jitaku daikibo-5.JPG|各社によって、プレゼンテーションのやり方はいろいろあります。
写真のようにプロジェクターを使って、視覚に訴える方法が最近は多くなっています。
提出される資料は「会社案内」、「実績表」、「業務に対する自社の考え方」などが一般的です。
今回は、当マンションを見て頂いた結果、どのような改善提案があるかをお願いしました。
私のマンションでは、エントランスのスロープの勾配がきつすぎるので将来のことを考えて改善したほうがよいとの提案がありました。
居住者側からの質問としては、「工事期間に関すること」「どのような工事内容となるか」「他のマンションでの事例」などが多かったようです。
(使用写真は他のマンションでの参考事例)
|
|0903jitaku daikibo-6.JPG|内定した設計事務所を承認してもらうための臨時総会の開催です。
修繕委員長が、設計事務所内定までの経緯を丁寧に説明しました。
設計事務所への支払は修繕積立金会計から支出しますので、予算案の変更も同時に提案しましたが、全員一致で承認されました。|